Terres Des Confluences

MOI-BUR-200 - 200 m² - Moissac - N°16

Commune :
MOISSAC
Vocation du local :
Bureau

Conditions générales

Surface totale :
200 m²
Loyer annuel :
20 400 € an / HT / HC

Prestations


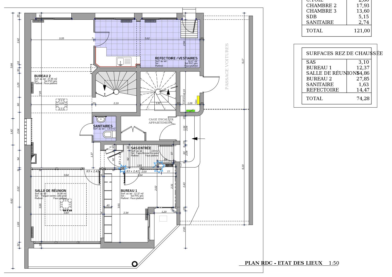
Ces bureaux étaient utilisés comme agence d’architecture. Ils sont lumineux, biens agencés et possèdent de nombreux rangements. Pour les clients, il est très facile de se garer devant les locaux à tout moment de la journée.
Composé d’une salle de réunion, 6 bureaux de superficie allant entre 10 à 30 m², un réfectoire/vestiaires et des sanitaires.

Accès et dessertes

Retour aux résultats Nous contacter à propos de cette offre